Gebäude B/C
Unsere dritte Projektentwicklung im TONI Park, Gebäude B/C, ist ein ganz besonderer Bau.
Er wirkt optisch wie zwei Gebäude und sorgt mit der auffälligen Fassadengestaltung für Abwechslung. Unser Gestaltungskonzept legt den Fokus auf Vielfalt und Inspiration statt auf eintöniges Betongrau. Die charakteristische rostrote Fassade, in harmonischem Zusammenspiel mit fein abgestuften Farbnuancen aus Anthrazit- und Sandtönen, hat längst einen unverwechselbaren Wiedererkennungswert erlangt.
Das Gebäude umschließt einen naturnah gestalteten Innenhof mit einem Sonnensegel, das vor Regen und Sonne schützt. Die einladenden Sitzbänke laden zum Verweilen und Entspannen für zwischendurch ein. Hier können Ihre Mitarbeitenden zwischen Meetings die Batterien wieder aufladen.
Die hellen Büroflächen bieten ganz individuelle Möglichkeiten, Ihre Arbeitsprozesse und Bedürfnisse optimal abzubilden.
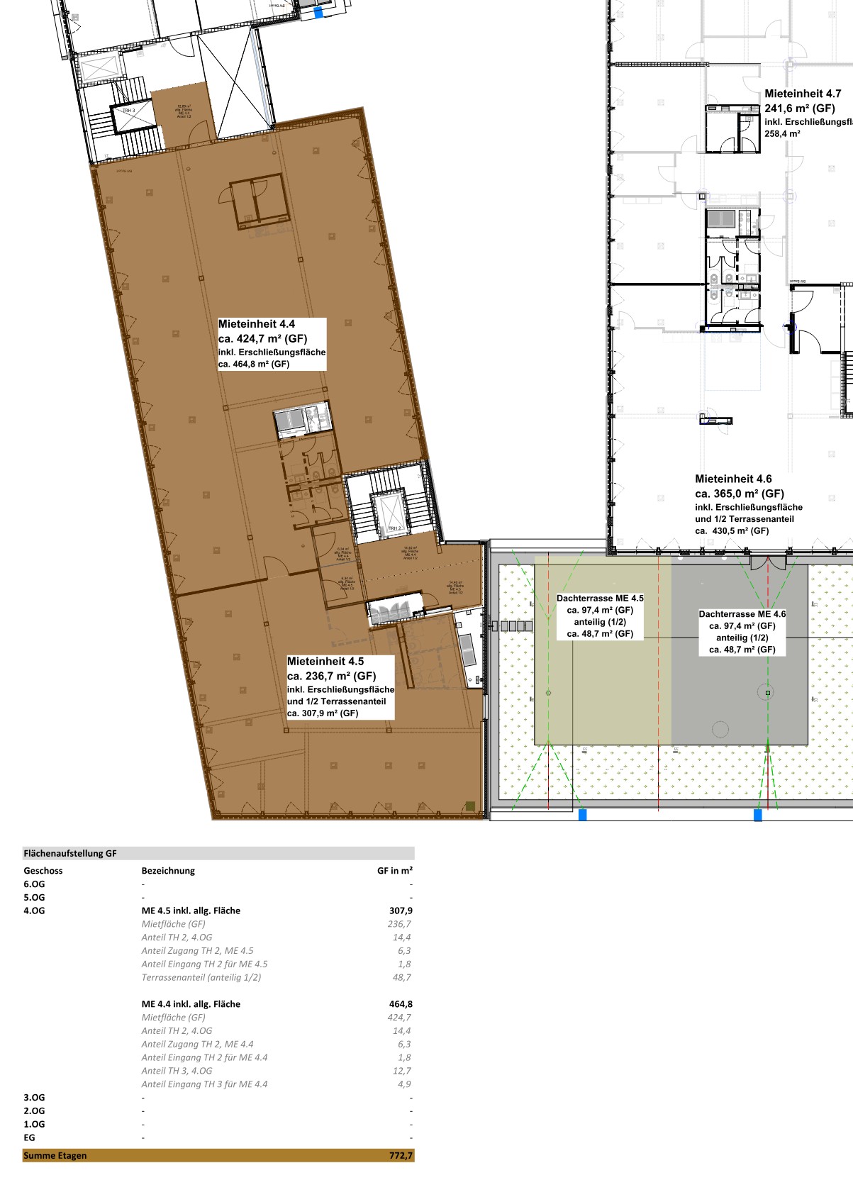
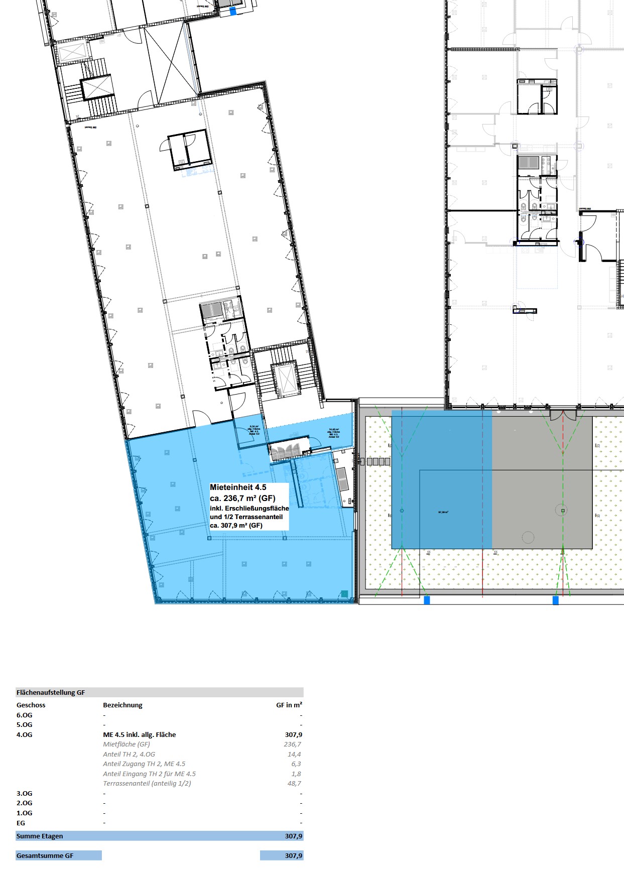
Anfang 2023 wurde das Gebäude fertiggestellt, und wenige Mietflächen sind ab 251 m² BGF verfügbar. Auch eine Dachterrasse steht noch für Ihr Team bereit!
Gebäude B/C
- Außenliegender Sonnenschutz
- Individuelle Grundriss- und Raumlösungen
- Highspeed-Internet mit redundanter Glasfaserverbindung (100 Gbit/s)
- Anschluss an das Rechenzentrum LEW/TelNet möglich
- Heizen & Kühlen: Grundwasserwärmepumpe
- Mechanische Lüftungstechnik
- Parkareal mit zweistufiger Videoabsicherung
- Intensive & biodiverse Dachbegrünung
- Attraktiv grüne Innenhofgestaltung mit Sonnensegel
- Erhöhte Bodentraglast mit max. 500kg/m²
- Hohlraumboden inkl. Bodentanks
- Digitale Zugangskontrolle
- Tagungsraum für bis zu 150 Personen im Gebäude verfügbar
Gebäude B/C
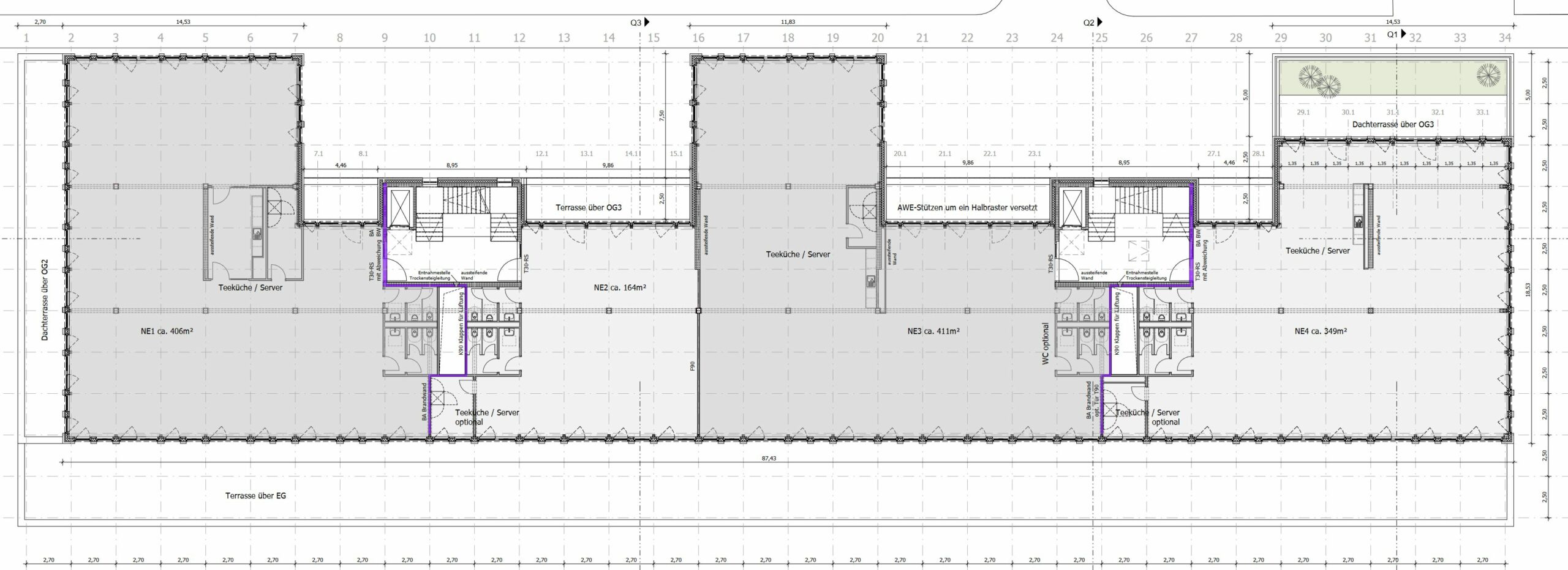
Beispielgrundrisse für eine ca. 409m² Einheit im Gebäude B/C im TONI Park. Nach Bedarf bauen wir die freien Flächen entsprechend den Anforderungen Ihres Unternehmens und Ihrer Mitarbeitenden aus. Die drei Grundrisse zeigen verschiedene Varianten von Open Space Lösungen über hybride Aufteilung bis kleinteilige Raumteilung, welche an die Arbeitsstättenrichtlinie angelehnt und geplant sind. In Abhängigkeit der Grundrisse variiert auch die Anzahl der Arbeitsplätze.
Erkunden Sie unsere Büroflächen hautnah mit unserer interaktiven 3D-Tour! Tauchen Sie ein in eine beispielhafte Nutzung unserer modernen Arbeitsumgebung und lassen Sie sich von den vielfältigen Möglichkeiten inspirieren. Nutzen Sie diese Gelegenheit, um Ideen zu sammeln und sich einen realistischen Eindruck von Ihrem zukünftigen Arbeitsplatz zu verschaffen. Erleben Sie die Räume so, als wären Sie persönlich vor Ort. Klicken Sie sich durch und lassen Sie sich von unserer Bürofläche begeistern!
Sie sehen gerade einen Platzhalterinhalt von TONI Park Augsburg. Um auf den eigentlichen Inhalt zuzugreifen, klicken Sie auf den Button unten. Bitte beachten Sie, dass dabei Daten an Drittanbieter weitergegeben werden.
Weitere InformationenFragen zum Objekt?
Interesse?
Gebäude D
Freie Flächen verfügbar!
Unser Gebäude D wird ein echter Hingucker – der Bauantrag ist bereits beantragt und die Planung ausgereift.
Gebäude D
- Individuelle Grundriss- und Raumlösungen
- Highspeed-Internet mit redundanter Glasfaserverbindung (100 Gbit/s)
- Anschluss an das Rechenzentrum LEW/TelNet möglich
- Heizen & Kühlen: Grundwasserwärmepumpe
- Mechanische Lüftungstechnik
- Außenareal mit zweistufiger Videoabsicherung
- Intensive & biodiverse Dachbegrünung
- Attraktiv grüne Innenhofgestaltung
- Hohlraumboden inkl. Bodentanks
- Digitale Zugangskontrolle
Fragen zum Objekt?
Interesse?
Gebäude G
Freie Flächen verfügbar!
Unser Gebäude G wird ein echter Hingucker – der Bauantrag ist bereits genehmigt und die Planung ausgereift. Neben der attraktiven Fassadengestaltung wird es viele Dachterrassen für Mieter:innen geben.
Auch die Außengestaltung wird wieder sehr grün, naturnah und mit hohem Aufenthaltsfaktor umgesetzt. Eine neue und innovative Segelkonstruktion spendet neben den großen Bäumen Schatten im Sommer und Schutz vor Regen. Eine kleine Bachlandschaft rundet den zum Entspannen und Verweilen einladenden Außenbereich ab.
Wieder perfekt für die Tagesgestaltung neben dem Arbeiten in State-Of-The-Art Bürolandschaften im TONI Park.